logo Pascal Strübin

SMARTGAMES

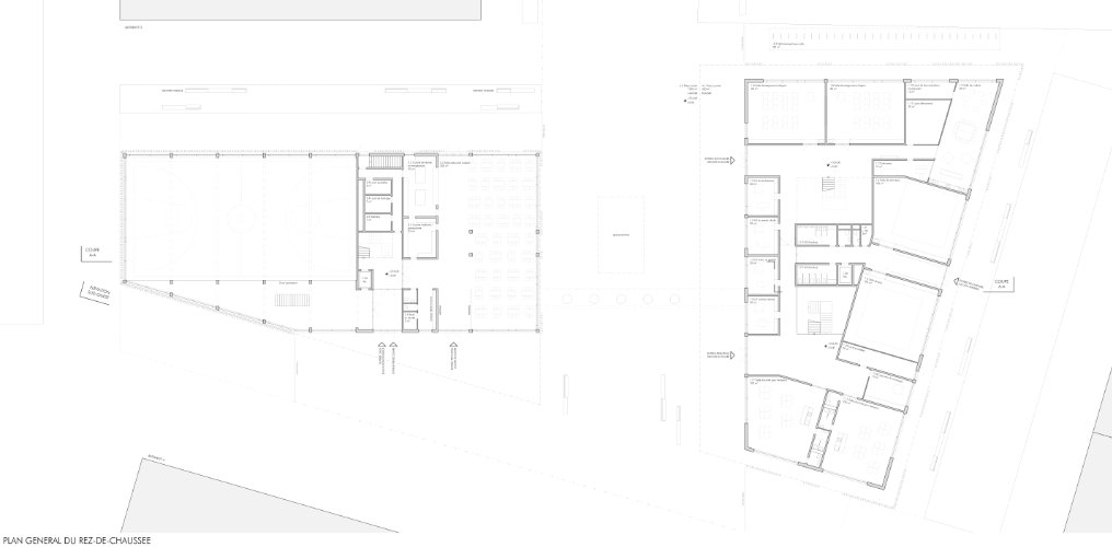
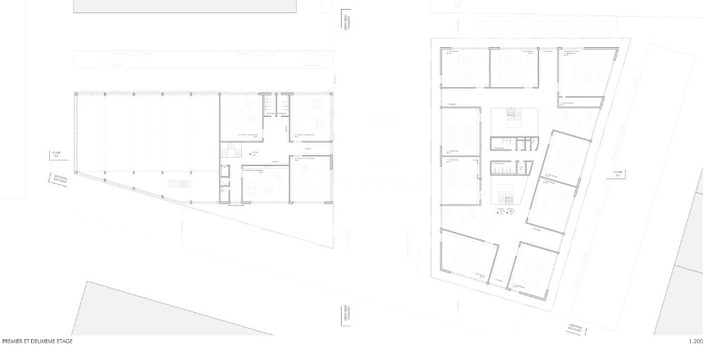
Réalisation d’un groupe scolaire sur le site des Vernets à Genève

Type

Concours de projets d’architecture à un degré en procédure ouverte

Programme

Construction d’un nouveau groupe scolaire complet de 16 classes pouvant accueillir 320 élèves pour le nouveau quartier des Vernets regroupant jusqu’à 1'500 nouveaux logements. Mise en place d’espace à destination du parascolaire et des associations sportives.

Localisation

Genève

Maître d'ouvrage

Ville de Genève

Date

Novembre 2018

Collaborateurs

Tamara Alves, Antonio Giordano

image1 image2 image3 image4 image5 image6 image7 image5 image6