logo Pascal Strübin

POLYMORPHE

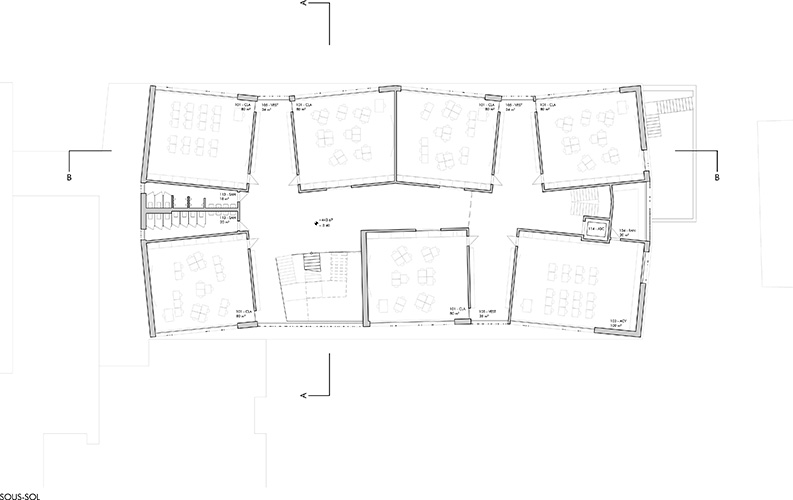
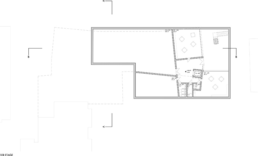
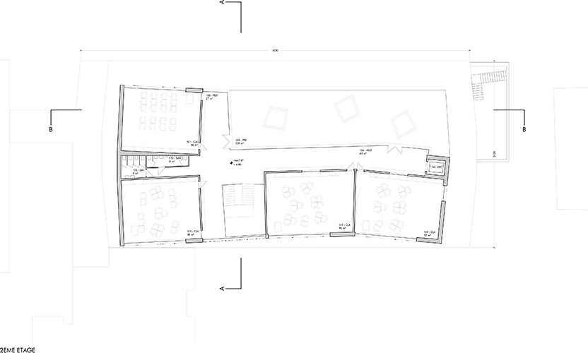
Construction d’une extension de l’école et des aménagements extérieurs

Type

Concours de projets d’architecture à un degré en procédure ouverte

Programme

Démolition et reconstruction d’une des annexes de l’école de Meinier afin d’augmenter le nombre de classes ainsi que les équipements du parascolaire. Mise en place d’un projet paysager du préau et des alentours immédiats.

Localisation

Commune de Meinier

Maître d'ouvrage

Commune de Meinier

Date

Mai 2017

Collaborateurs

Tamara Alves

image1 image2 image3 image4 image5 image6 image4 image5 image6