logo Pascal Strübin

Doline

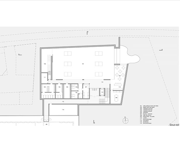
Extension de l’école de Val d’Arve

Type

Concours d’architecture, en collaboration avec le bureau MCD architectes

Programme

Construction d’un nouveau bâtiment comprenant des locaux scolaires, des locaux de sociétés et un logement pour le concierge

Localisation

Carouge – Genève

Maître d'ouvrage

Ville de Carouge

Date

Février 2014

Collaborateurs

Jean-Michel Droz – Blaise Cartier – Antonio Giordano

image1 image2 image3 image4 image5 image6 image2 image3