logo Pascal Strübin

Décalé

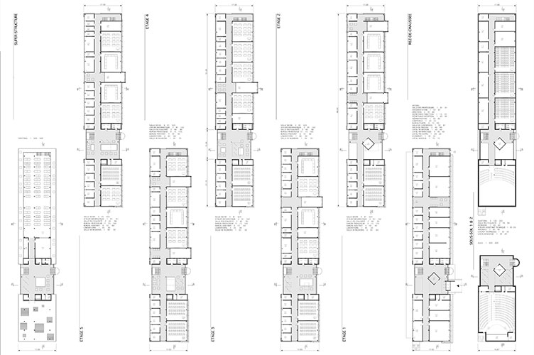
HEG

Type

Concours d’architecture

Programme

Construction du bâtiment de la Haute Ecole de Gestion

Localisation

Battelle - Genève

Maître d'ouvrage

 

Date

Décembre 2005

Collaborateurs

 

image1 image2 image3 image4 image5 image6 image7